Appartamento in Vendita Torrazza Piemonte - Rif. G789

€ 130.000

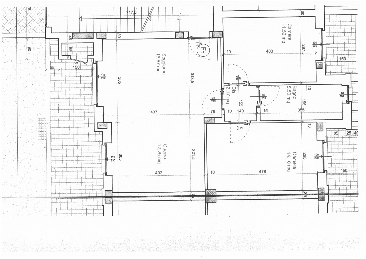
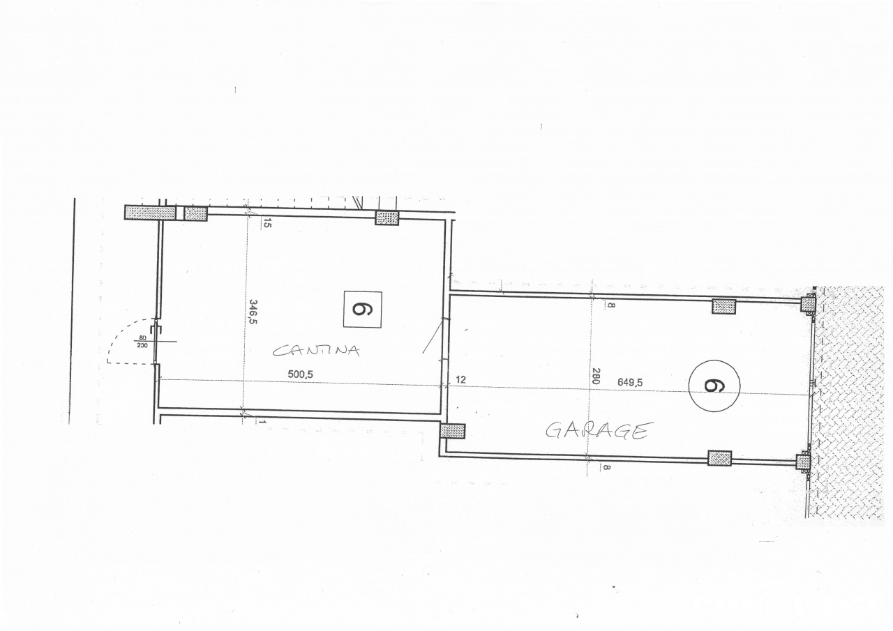
TORRAZZA PIEMONTE, via Traversa Mazzini. In piccola palazzina di recente costruzione (2011), elevata su due piani fuori terra, proponiamo in vendita alloggio trilocale posto al piano terreno con giardino privato, ampia cantina e box auto. L'appartamento è composto da ingresso su soggiorno-cucina, disimpegno, due camere, bagno, due balconi e giardino privato di circa 70 metri quadrati.
L'immobile è caratterizzato da serramenti in legno con doppi vetri, tende parasole lato giardino e tende inverno-estate nei due balconi, zanzariere nella zona notte, climatizzazione mono split nella zona giorno. Riscaldamento centralizzato a pavimento contabilizzato.


Per visualizzare tutte le foto, collegarsi al sito cittacasa riferimento G789.

Per info su questo annuncio rivolgersi all'agenzia di Chivasso, piazza Garibaldi 1/b, 011.913.11.11

Classe Energetica

  • Classe Energetica: B
  • EPgl (da fonti rinnovabili):0 KWh/m2a
  • EPgl (da fonti non rinnovabili):58,32 KWh/m2a

Caratteristiche

  • Superficie: Mq. 75
  • Condizioni: ottimo
  • Disponibilità: libero al rogito
  • 1 Servizi
  • 3 Num. Vani
  • Balcone: SI
  • Terrazzo: NO
  • Mansarda: NO
  • Cantina: SI
  • Piano: pianoterra
  • Piani Totali: 2
  • Spese cond. mensili: 120
  • Ascensore: NO
  • Cucina: angolo cottura
  • Riscaldamento: centralizzato
  • Condizionatore: SI
  • Box Auto: box singolo

Visualizza sulla mappa

Immobili simili

Vendita

Rif: G779