Appartamento in Vendita Torrazza Piemonte - Rif. G779

€ 119.000

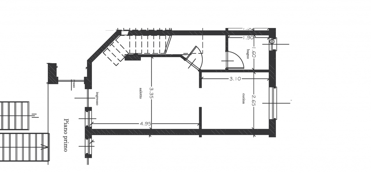
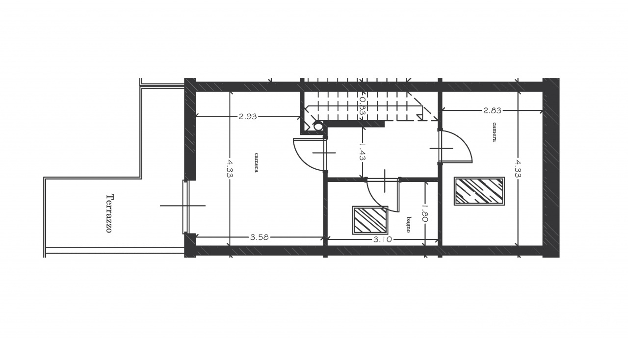
TORRAZZA PIEMONTE, centro. In complesso immobiliare di recente costruzione (2009) proponiamo appartamento posto al primo ed ultimo piano con sottotetto abitabile completamente rifinito. L'alloggio, disposto su due livelli (35 mq piano primo e 45 mq piano secondo), è collegato da una comoda scala interna ed è composto da ingresso living su soggiorno, cucina, disimpegno e bagno; sottotetto composto da due camere, disimpegno, bagno e grande terrazzo.
A completamento un posto auto privato scoperto.
L'immobile si trova in ottimo stato sia interno che esterno, dispone di videocitofono, portoncino blindato, infissi con doppi vetri e riscaldamento autonomo.

Per visualizzare tutte le foto, collegarsi al sito cittacasa riferimento G779.
Per info su questo annuncio rivolgersi all'agenzia di Chivasso, piazza Garibaldi 1/b, 011.913.11.11

Classe Energetica

  • Classe Energetica: C
  • EPgl (da fonti rinnovabili):0 KWh/m2a
  • EPgl (da fonti non rinnovabili):102,3 KWh/m2a

Caratteristiche

  • Superficie: Mq. 85
  • Condizioni: ottimo
  • Disponibilità: libero al rogito
  • 2 Servizi
  • 4 Num. Vani
  • Balcone: NO
  • Terrazzo: SI
  • Mansarda: NO
  • Cantina: NO
  • Piano: su più livelli
  • Piani Totali: 2
  • Spese cond. mensili: 69
  • Ascensore: NO
  • Cucina: abitabile
  • Riscaldamento: autonomo
  • Condizionatore: NO
  • Box Auto: posto auto esclusivo
  • Giardino: nessuno

Visualizza sulla mappa

Immobili simili

Vendita

Rif: G789