Appartamento in Vendita Chivasso - Rif. G787

€ 102.000

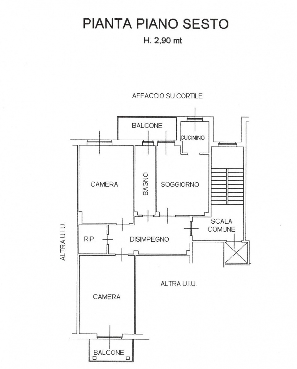
CHIVASSO, Via Momo. In zona comoda al centro e ai principali servizi quali ospedale e stazione ferroviaria, proponiamo in vendita appartamento luminoso e panoramico, situato al sesto piano con ascensore. L'immobile, già ristrutturato, si compone di ingresso, tinello con cucinino, due camere da letto, bagno, ripostiglio, due balconi e cantina al piano interrato. Grazie al piano alto e alla doppia esposizione, l'alloggio gode di ottima luminosità ed è la soluzione ideale per chi è alla ricerca di un'abitazione pronta da abitare, in posizione strategica e ben servita. Riscaldamento centralizzato con termo valvole per la contabilizzazione del calore.

Per visualizzare tutte le foto, collegarsi al sito cittacasa, riferimento G787.
Agenzia di Chivasso, Piazza Garibaldi 1/b.

Classe Energetica

  • Classe Energetica: E
  • EPgl (da fonti rinnovabili):0 KWh/m2a
  • EPgl (da fonti non rinnovabili):112,09 KWh/m2a

Caratteristiche

  • Superficie: Mq. 87
  • Condizioni: ristrutturato
  • Disponibilità: libero al rogito
  • 1 Servizi
  • 3 Num. Vani
  • Balcone: SI
  • Terrazzo: NO
  • Mansarda: NO
  • Cantina: SI
  • Piano: 6
  • Piani Totali: 7
  • Spese cond. mensili: 190
  • Ascensore: SI
  • Cucina: tinello
  • Riscaldamento: centralizzato
  • Condizionatore: NO
  • Box Auto: nessuno
  • Giardino: nessuno

Visualizza sulla mappa

Immobili simili

Vendita

Rif: G791