Casa Semi Indipendente in Vendita San Sebastiano Da Po - Rif. A770

€ 125.000

Per questo annuncio telefonare al 0119191552.

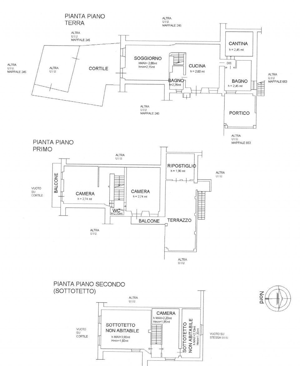
SAN SEBASTIANO DA PO. In zona tranquilla e soleggiata, proponiamo in vendita una graziosa casa indipendente su tre lati, sviluppata su tre livelli.
L'abitazione si distingue per la sua ampia metratura e la presenza di spazi ben distribuiti, che garantiscono comfort e funzionalità.
L'ingresso si apre su un luminoso soggiorno con camino a legna, seguito da una cucina abitabile, ideale per la preparazione dei pasti in famiglia.
Al piano terra si trova anche un comodo bagno di servizio e una pratica lavanderia/cantina, che aggiunge ulteriore comodità alla gestione quotidiana della casa.
Al primo piano si trovano due camere da letto, spaziose e ben illuminate, adatte a ospitare una famiglia.
A completare il piano un bagno di dimensioni contenute, perfetto come bagno di servizio per le camere.
L'ultimo piano ospita una terza camera grezza, ideale come studio, camera degli ospiti o stanza per i ragazzi, con accesso a una vista panoramica sulla zona circostante.
Completa l'immobile il balcone e l'ampio terrazzo di oltre 25 mq.
La proprietà è arricchita da un cortile privato, perfetto per momenti di relax all'aperto o per un piccolo giardino. Inoltre, un box auto al piano terra offre comodo parcheggio e spazio per lo stoccaggio.
Sul lato opposto della strada, è incluso un terreno di proprietà semi pianeggiante, che rappresenta un'ulteriore opportunità per chi desidera ampliare gli spazi esterni o realizzare un giardino.
Questa casa indipendente è la soluzione ideale per chi cerca indipendenza, tranquillità e una buona distribuzione degli spazi, con la possibilità di personalizzare gli ambienti a proprio gusto.

Per visionare tutte le foto collegarsi al sito cittacasa, riferimento A770.

Agenzia di San Sebastiano da Po, Via Chivasso 5/a

Classe Energetica

  • Classe Energetica: E
  • EPgl (da fonti rinnovabili):0 KWh/m2a
  • EPgl (da fonti non rinnovabili):0 KWh/m2a

Caratteristiche

  • Superficie: Mq. 130
  • Condizioni: buono
  • Disponibilità: libero al rogito
  • 3 Servizi
  • 4 Num. Vani
  • Balcone: SI
  • Terrazzo: SI
  • Mansarda: NO
  • Cantina: SI
  • Piano: su più livelli
  • Ascensore: NO
  • Cucina: abitabile
  • Riscaldamento: autonomo
  • Condizionatore: NO
  • Box Auto: garage + posto
  • Giardino: privato

Visualizza sulla mappa

Immobili simili

Vendita

Rif: A752