Appartamento in Affitto Chivasso - Rif. G784

€ 400

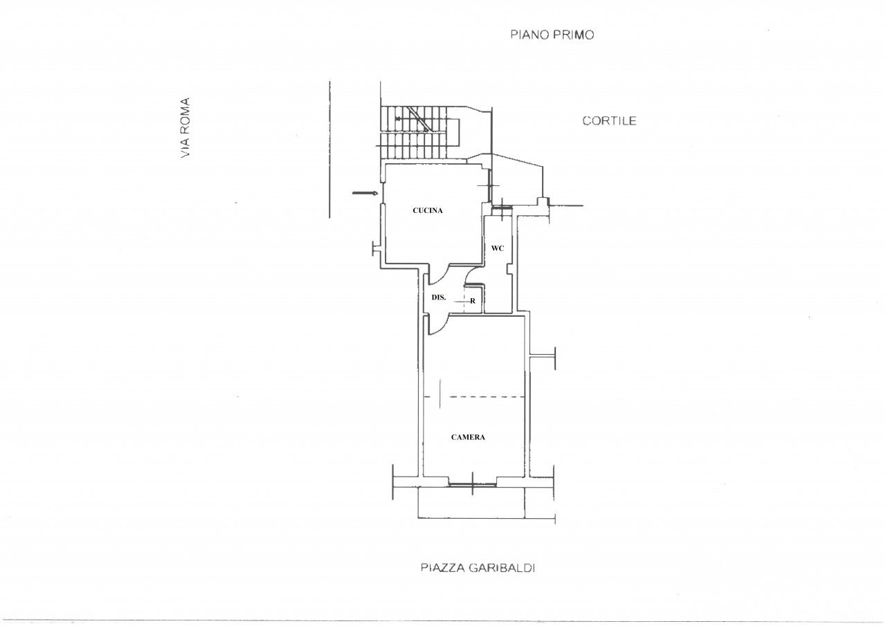
CHIVASSO, Via Roma. A pochi passi dalla stazione e nelle vicinanze dell'ospedale e dell'isola pedonale, proponiamo in affitto appartamento ammobiliato posto al primo piano (con ascensore), composto da ingresso su cucina, disimpegno, ripostiglio, salottino, una camera, bagno e due balconi. Riscaldamento centralizzato con termovalvole per la contabilizzazione del calore.

Si prediligono contratti transitori annuali con possibilità di rinnovo.

Si richiedono due mensilità di cauzione e clienti con referenze personali e reddituali dimostrabili.

Per visualizzare tutte le foto, collegarsi al sito cittacasa, riferimento G784.

Agenzia di Chivasso (TO), Piazza Garibaldi 1/b.

Classe Energetica

  • Classe Energetica: E
  • EPgl (da fonti rinnovabili):0 KWh/m2a
  • EPgl (da fonti non rinnovabili):140,12 KWh/m2a
  • Indice di prestazione certificato:Si

Caratteristiche

  • Superficie: Mq. 48
  • Condizioni: abitabile
  • Disponibilità: libero
  • 1 Servizi
  • 2 Num. Vani
  • Balcone: SI
  • Terrazzo: NO
  • Mansarda: NO
  • Cantina: NO
  • Piano: 1
  • Piani Totali: 7
  • Spese cond. mensili: 100
  • Ascensore: SI
  • Cucina: abitabile
  • Riscaldamento: centralizzato
  • Condizionatore: NO
  • Box Auto: nessuno
  • Giardino: nessuno

Visualizza sulla mappa