Appartamento in Vendita Chivasso - Rif. G775

€ 75.000

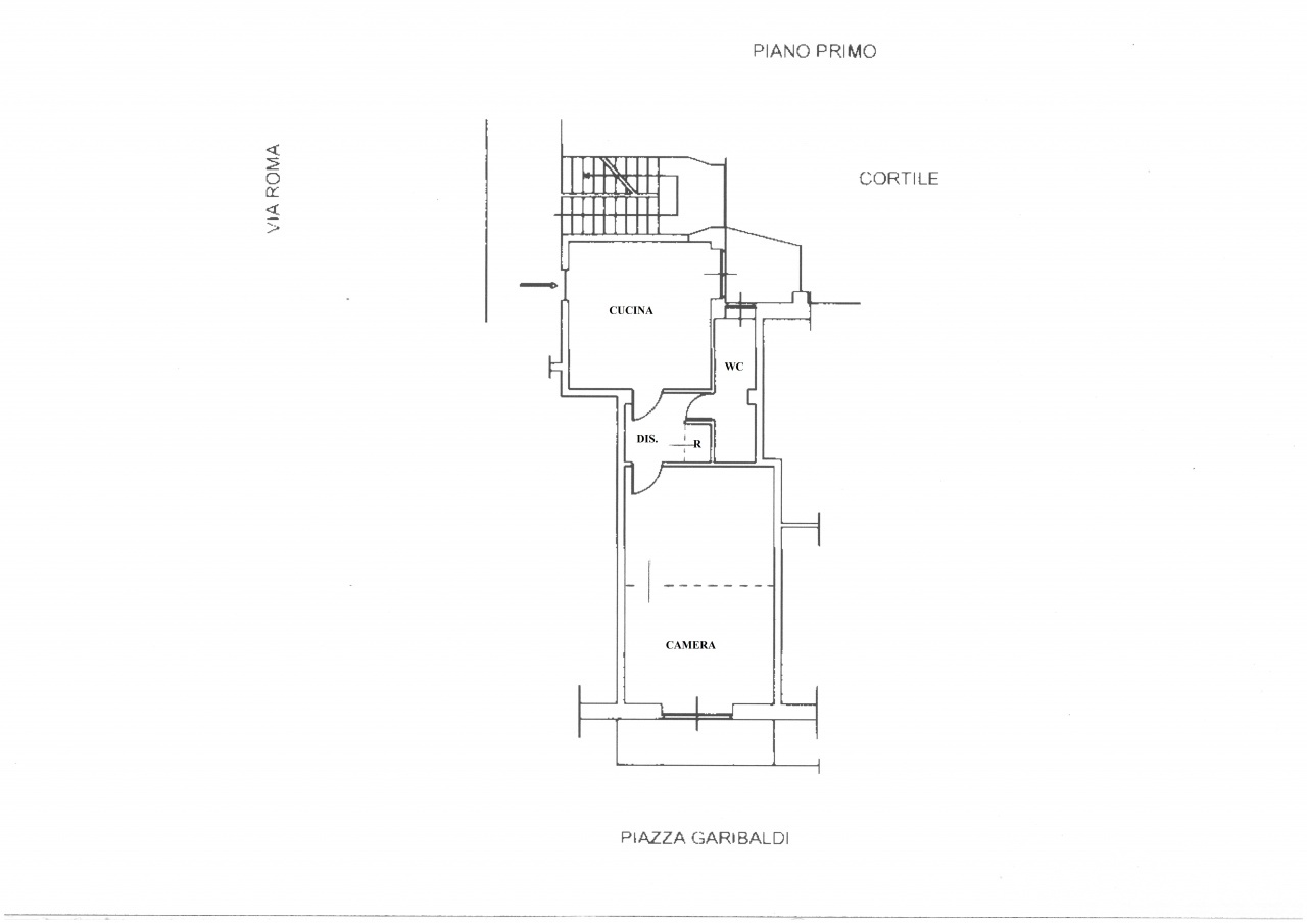
CHIVASSO. Direttamente sulla piazza della stazione ferroviaria, a pochi passi dall'isola pedonale, proponiamo in vendita alloggio bilocale (attualmente suddiviso in tre locali) posto al primo piano. L'immobile, che sviluppa una metratura catastale di 58 mq, è composto da ingresso su cucina, disimpegno, bagno, ripostiglio, grande camera da letto (tramezzata con cartongesso per creare un angolo salotto) e due balconi. Ideale anche come investimento. Riscaldamento centralizzato con termo valvole per la contabilizzazione del calore.
Per visualizzare tutte le foto, collegarsi al sito cittacasa, riferimento G775.

Agenzia di Chivasso (TO), Piazza Garibaldi 1/b.

Classe Energetica

  • Classe Energetica: F
  • EPgl (da fonti rinnovabili):0 KWh/m2a
  • EPgl (da fonti non rinnovabili):121,16 KWh/m2a

Caratteristiche

  • Superficie: Mq. 58
  • Condizioni: abitabile
  • Disponibilità: -
  • 1 Servizi
  • 2 Num. Vani
  • Balcone: SI
  • Terrazzo: NO
  • Mansarda: NO
  • Cantina: NO
  • Piano: 1
  • Piani Totali: 7
  • Spese cond. mensili: 120
  • Ascensore: SI
  • Cucina: abitabile
  • Riscaldamento: centralizzato
  • Condizionatore: SI
  • Box Auto: nessuno
  • Giardino: nessuno

Visualizza sulla mappa

Immobili simili

Vendita

Rif: G773