Cascina in Vendita Verolengo - Rif. A764

€ 165.000

Per questo annuncio telefonare al 0119191552.

VEROLENGO. Nelle vicinanze del centro paese proponiamo in vendita una cascina indipendente su tre lati, ideale per chi cerca ampi spazi, versatilità e un contesto di privacy immerso nel verde.
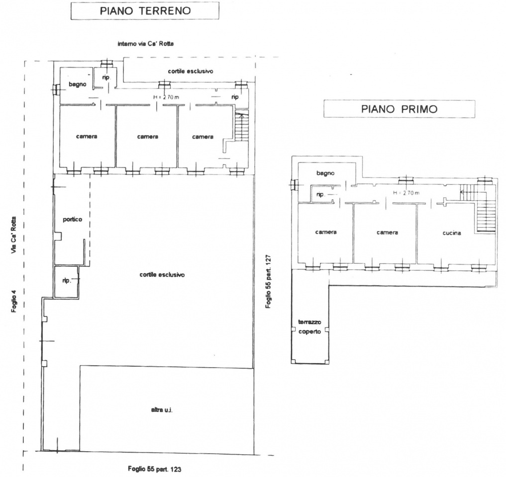
L'immobile si sviluppa su due livelli e si presta a due soluzioni abitative:
- Soluzione bifamiliare: la proprietà è attualmente suddivisa in due alloggi indipendenti, uno al piano terra e uno al primo piano, entrambi composti da cucina/soggiorno, due camere da letto e doppi servizi -- ideale per due nuclei familiari o per chi desidera una parte da destinare a locazione o ospiti.
- Soluzione unifamiliare: facilmente riconfigurabile come un'unica ampia abitazione composta da:
- Piano terra: cucina, soggiorno, una camera da letto e bagno;
- Piano primo: tre camere da letto, bagno, balcone e terrazzo.
A completare la proprietà troviamo un ampio cortile, il box auto, una tettoia perfetta come ricovero per camper o più veicoli, zona barbecue e un pozzo funzionante.
Inoltre é presente un ampio giardino di oltre 300 mq, ideale per momenti di relax all'aria aperta, orto o area gioco.
Una soluzione unica, perfetta per famiglie numerose, per chi desidera un'abitazione con spazi accessori o per chi cerca una casa multifunzionale in un contesto tranquillo ma ben collegato.

Per visionare tutte le foto collegarsi al sito cittacasa, riferimento A764.

Agenzia di San Sebastiano da Po, Via Chivasso 5/a.

Classe Energetica

  • Classe Energetica: E
  • EPgl (da fonti rinnovabili):0 KWh/m2a
  • EPgl (da fonti non rinnovabili):0 KWh/m2a

Caratteristiche

  • Superficie: Mq. 200
  • Condizioni: abitabile
  • Disponibilità: libero al rogito
  • 2 Servizi
  • 6 Num. Vani
  • Balcone: SI
  • Terrazzo: SI
  • Mansarda: NO
  • Cantina: NO
  • Piano: su più livelli
  • Ascensore: NO
  • Cucina: abitabile
  • Riscaldamento: autonomo
  • Condizionatore: NO
  • Box Auto: garage + posto
  • Giardino: privato

Visualizza sulla mappa